Dieses Einfamilienhaus aus dem Jahr 1966 vereint solide Bauqualität mit durchdachten Modernisierungen und bietet Ihnen ein Zuhause, das Sie ohne großen Aufwand direkt beziehen können. Die Immobilie befindet sich in einem sehr guten Allgemeinzustand und wurde über die Jahre hinweg kontinuierlich gepflegt und technisch aufgewertet.
Bereits 2011 wurden moderne 2-fach verglaste Kunststofffenster eingebaut. Vereinzelt sind auch 3-fach verglaste Kunststofffenster von 2019 verbaut worden, wie z.B. im Wohnzimmer und im Verkaufsraum. Im selben Jahr erhielten das Wohnzimmer sowie die Schlafzimmer einen hochwertigen Parkettboden, der für eine warme, stilvolle Wohnatmosphäre sorgt. Die oberste Geschossdecke ist mit ca. 20 cm Styropor gedämmt – ein Pluspunkt in Sachen Energieeffizienz.
Ein weiterer wesentlicher Modernisierungsschritt erfolgte 2019 mit der vollständigen Erneuerung der Elektroverteilung. Ebenfalls 2019 wurde eine moderne Einbauküche installiert, die mit zeitgemäßem Design und Funktionalität überzeugt. Die Ölheizung wurde bereits 2005 erneuert.
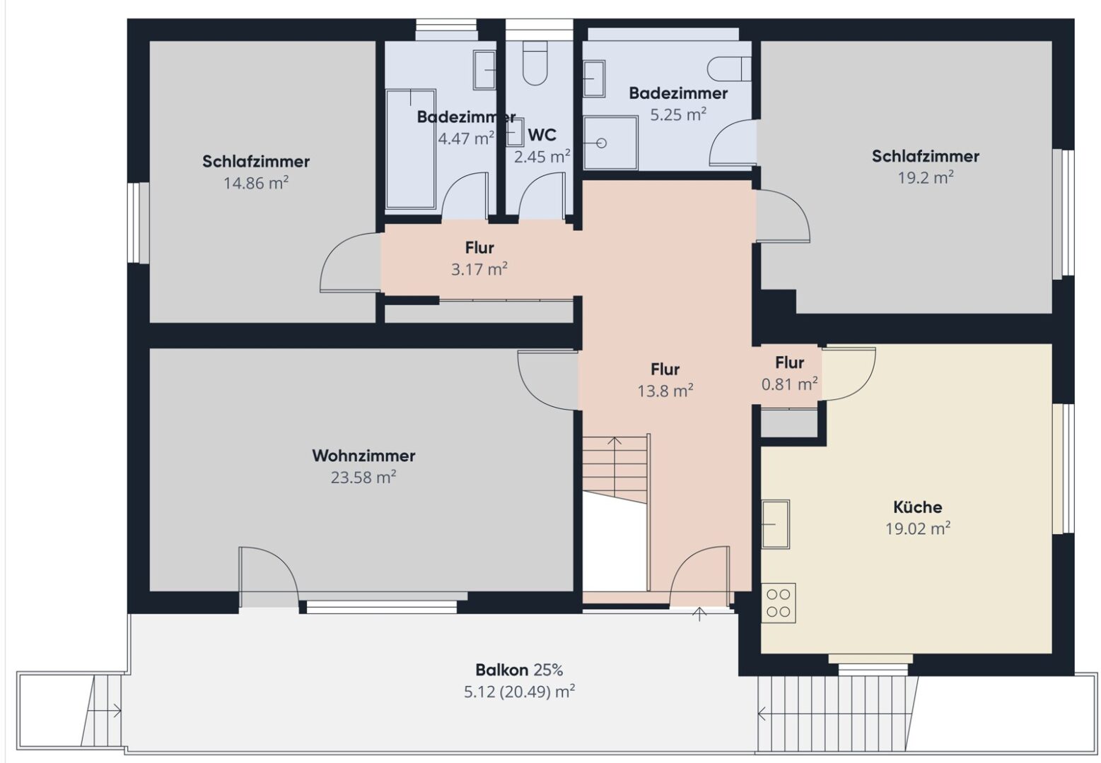
Das Haus bietet reichlich Platz für die ganze Familie und überzeugt mit einer durchdachten Raumaufteilung. Besonders interessant ist der ca. 20 m² große Raum im Kellergeschoss, der sich ideal als kleiner Verkaufsraum, Büro, Praxis- oder Hobbybereich eignet – perfekt für alle, die Wohnen und Arbeiten unter einem Dach verbinden möchten.
Die im Gebäude integrierte Garage ermöglicht bequemes und wettergeschütztes Parken.
Der Garten im hinteren Bereich des Hauses bildet Ihren privaten Rückzugsort – ruhig gelegen und vielseitig nutzbar. Ob entspannte Stunden im Grünen, Spielfläche für Kinder oder gesellige Abende mit Freunden: Hier genießen Sie Ihre persönliche Wohlfühloase.


















